![]() |
| Die ersten Gebäude auf dem Gelände des Bürger- und Sozialzentrums in Huchting werden bereits abgerissen. Foto: Füller |
Der Abriss der alten Gebäude des Bürger- und Sozialzentrums (BuS) in Huchting hat begonnen. Auf Nachbarn und Mieter kommen während der nächsten Monate Lärm, Staub und Parkplatzprobleme zu. Mit dem Neubau soll noch in diesem Jahr begonnen werden.
Das Gelände des Bürger-und Sozialzentrums hat sich sichtbar verändert: Die ehemalige Bibliothek ist bereits zu großen Teilen den Abrissbaggern zum Opfer gefallen, das Areal kann nicht mehr auf dem üblichen Weg betreten werden.
Als nächstes sind im August die beiden flachen Gebäude im vorderen Bereich an der Reihe, berichtete Tobias Willers, Architekt bei Schröder Architekten, im Rahmen eines Infotreffens für Anwohner und Beteiligte. Ebenfalls vor Ort waren Vertreter des Trägervereins sowie von Immobilien Bremen.
Parkplatzprobleme, Lärm und Staub
Bevor mit dem Neubau des BuS begonnen werden kann, müssten dann zunächst die Wasser-, Abwasser- und sonstige Versorgungsleitungen verlegt werden. Während der kommenden Monate werde es immer wieder zu Behinderungen im Bereich der Amersfoorter Straße kommen, so Willers weiter. „Die Handwerker werden die Parkplätze nutzen, sie sind öffentlich. Eine andere Regelung kann nur das Amt für Straßen und Verehr erlassen“, so der Architekt weiter.
Sorgen bereitete den ansässigen Vereinen vor allem die Sicherheit auf dem Gelände. „Wir haben schon Baufahrzeuge ohne Einweiser fahren gesehen. Das ist gerade für die Kinder sehr gefährlich“, berichteten Michael Horn und Verena Behrens vom Mütterzentrum.
![]() |
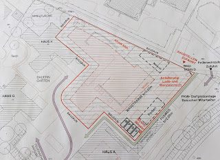
| Der Neubau (rot) entsteht im vorderen Bereich des Areals. Foto: Schlie |
Sicherheit steht im Fokus
Um die Sicherheit auf dem Gelände zu gewährleisten, müsse man unter Umständen den abgesperrten Bereich ausweiten, erklärte Willers weiter.
Ein weiteres wichtiges Thema für die Anwohner: Der Lärm sowie der Staub, die beim Abriss der alten Gebäude entstehen.
„Beides wird im gesetzlichen Rahmen eingehalten. Schadstoffe werden vor dem Abriss von Spezialfirmen entfernt und entsorgt, sodass der Staub vom normalen Bauschutt stammt. Sollte es sehr heiß werden im Sommer, wird zusätzlich mit Wasser gesprengt, um den Staub in Grenzen zu halten“, so der Diplom-Ingenieur.
„Wir sind auf Hinweise angewiesen, um mögliche Probleme abstellen zu können, erklärte Gunnar Zropf, Kassenwart des Vorstands des Trägervereins und Einrichtungsleiter der AWO intergra.
Im März 2016 mit dem Hochbau des zweigeschossigen Passivhauses begonnen werden.









